The current residence can easily be run as a very luxurious B&B with 7 bedrooms, four entertainment/dining areas, a large kitchen with large laundry, pantry, fridge room and enough parking.

The building can be transformed by a few minor changes into a luxurious boutique hotel with 6 ensuite bedrooms by incorporating an existing bedroom into the two adjacent ones, adding two bathrooms and dressing areas.
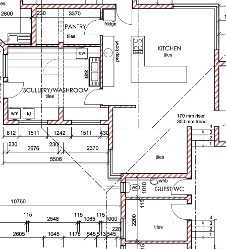
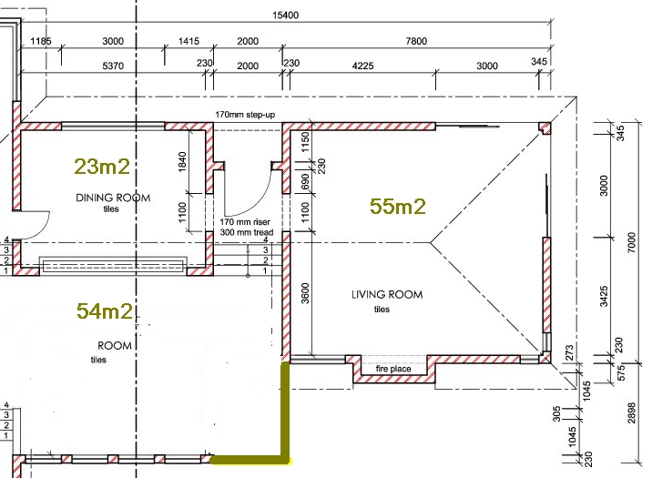
These changes are shown on architectural drawings.


The drawings also show the enlargement of the kitchen, laundry, pantry and outside flat as well as the detail for adding a large fith entertainment/dining area.


Guests can participate in many activities or relax on the deck overlooking the Koi pools or under the willows next to the lake. They can also take a stroll through the massive indigenous trees in the gulley or listen to the splash of the natural waterfall (in the rainy season or artificially assisted)


Fish for Balck Bass, Barbel or Carp or swim in the swimming pool where 6 lengths equal 100meters.
Play tennis or Squash


Hit some golf balls on the lawn 200m beyond the gulley or play games along the lake or the third 200m lawn that stretches between the lake and the waterfall, passing between the rondawel and swimming pool.

Or stretch your muscles on the climbing wall.
Another enhancement requiring more extensive building work will be to add an additional floor, to increase the capacity to 14 ensuite bedrooms. Architectural drawings to add the floor have already been drawn up.